Skip to main content Skip to page footer

Haus 11 d

Grundrisse

5

Wohneinheiten

100 %

fremdverkehrfrei

500 m

zur Innenstadt

2 - 4

Zimmer

91 - 140

Quadratmeter

QNG

zertifiziert

ab Q1-2028

Fertigstellung

24

Tiefgaragenplätze

Ruhig

gelegen

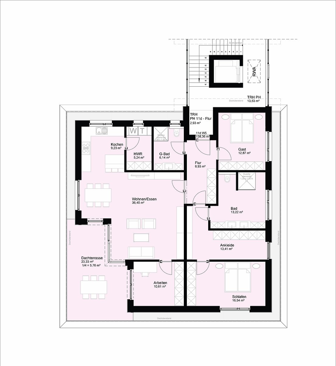
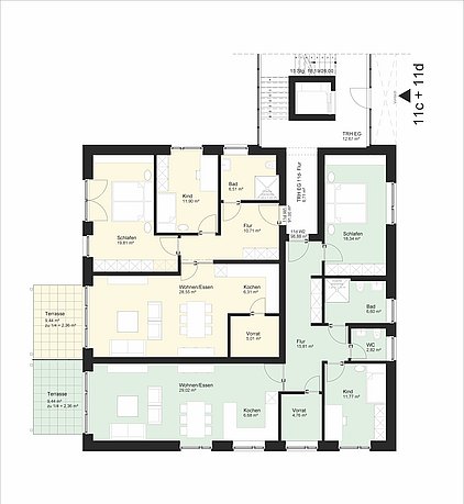
Haus 11d

5 Wohnungen zwischen 91 und 140 m²

Dieses moderne Neubauhaus am Grünen Weg bietet insgesamt 5 stilvolle Wohnungen – 4 komfortable Wohneinheiten und ein exklusives Penthouse. Ein gemeinsames, hell verglastes Treppenhaus verbindet die Häuser C und D miteinander und unterstreicht die offene Architektur. Die Grundrisse unterscheiden sich leicht von den Häusern A und B und schaffen so individuelle Wohnlösungen für unterschiedliche Bedürfnisse. Helle Räume, hochwertige Ausstattung und private Balkone oder Terrassen sorgen für ein angenehmes Wohngefühl und zusätzlichen Freiraum im Grünen. Über den direkten Zugang zur Tiefgarage gelangen Sie bequem und wettergeschützt ins Haus. Ein ideales Zuhause für alle, die modernes Wohnen mit einer ruhigen Lage verbinden möchten.

Haben wir Ihr Interesse geweckt?

Tragen Sie sich hier ein:

Ich interessiere mich für:
Wohnungstyp:
Wohnungsart und Zusatz:
Wie sind Sie auf uns aufmerksam geworden?